Luxury Restroom & Shower Trailers
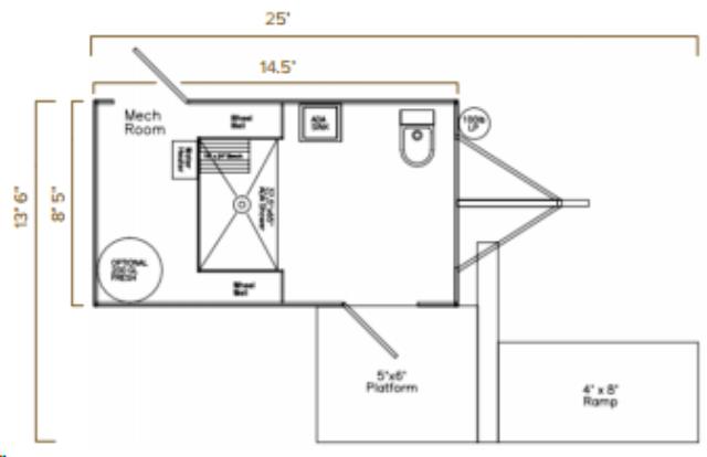
ADA Shower and Restroom Trailer Combo
Click on above thumbnails for alternate view
* Prices are subject to change. Applicable sales tax, delivery, and other fees are not included in price estimates.
* Please call us with questions about our ada shower and restroom trailer combo rentals, serving Fresno CA, Clovis, and the Central Valley of California.









